Espace propriétaire
fr
Se connecter
Se connecter

Votre recherche

Exclusivité
Coup de coeur
Le Cannet (06110)

2 pièces - 45 m²

Beau 2 pièces avec grand jardin – Fort potentiel – Le Cannet

224 000 €
Ref : 717-E
Découvrir le bien

À saisir : spacieux 2 pièces de 45 m², situé en rez-de-chaussée d’une résidence sécuriée.
Un bien rare sur le secteur, offrant un grand extérieur et un énorme potentiel de personnalisation.


- Les atouts majeurs


  • Jardin privatif de 120 m² accessible de toutes les pièces, idéal pour recevoir, jardiner ou profiter du plein air

  • Surface totale exploitable : 175 m²

  • Rez-de-chaussée + ascenseur dans la copropriété

  • Accès PMR

  • Cave privative

  • Place de parking extérieurs incluse

  • Environnement calme


- Intérieur & potentiel


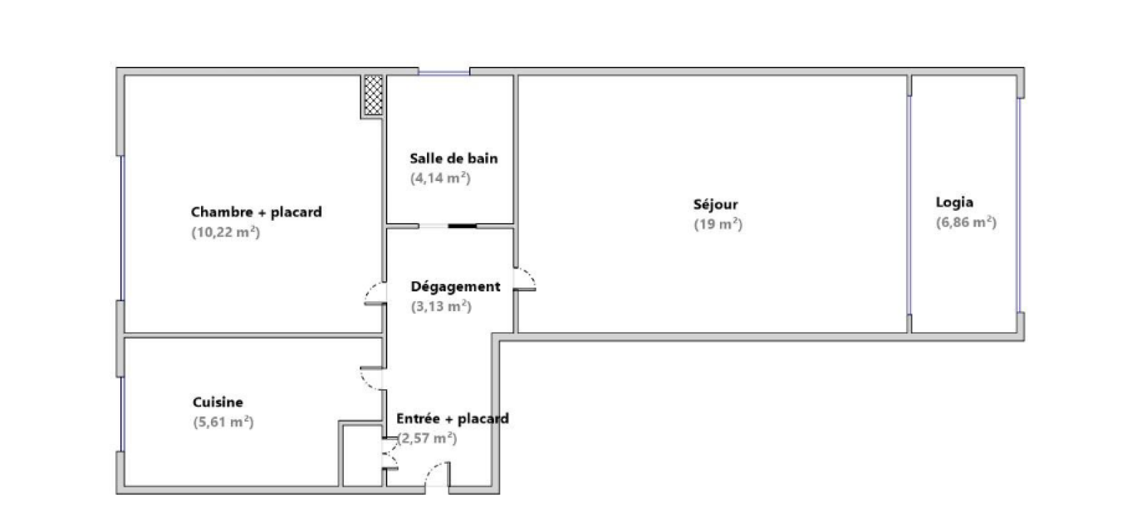
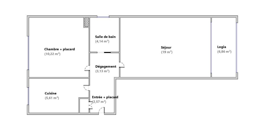
Ce 2 pièces se compose de :


  • un séjour donnant sur l’extérieur

  • une cuisine séparée donnant sur l’extérieur

  • une chambre donnant sur l’extérieur

  • une salle de bain avec wc


Des mises au goût du jour permettront de révéler tout son potentiel : optimisation de l’espace, modernisation des pièces d’eau, création d’un espace de vie contemporain… Un excellent projet pour un premier achat ou un investissement.


Prix de vente : 224 000 €

Charges annuelles : 1060€ soit par 88€ /mois

Copropriété de 772 lots - pas de procédure en cours


- Contact : Pour plus d’informations ou organiser une visite, contactez Olivia RIbaud-Chevrey 06.13.97.42.66.

Un bien rare avec un fort potentiel de valorisation !


Les informations sur les risques auxquels ce bien est exposé sont disponibles sur le site Géorisques
TRAD_ZEPHYR_Caracteristique TRAD_ZEPHYR_Valeurs
Code postal 06110
Surface loi Carrez (m²) 45 m²
Nombre de chambre(s) 1
Nombre de pièces 2
Ascenseur OUI
TRAD_ZEPHYR_Caracteristique TRAD_ZEPHYR_Valeurs
Nb de salle de bains 1
Cuisine Séparée
Mode de chauffage Autre
Type de chauffage Convecteur
Format de chauffage Individuel
Interphone OUI
Loggia OUI
Murs mitoyens 1
Cave OUI
Nombre de parking 1
Exposition Sud-Ouest
Année de construction 1980
TRAD_ZEPHYR_Caracteristique TRAD_ZEPHYR_Valeurs
Copropriété OUI
nombre de lots 772
Quote Part annuelle des charges 1 060 €
plan de sauvegarde NON
statut du syndic pas de procédure en cours
TRAD_ZEPHYR_Caracteristique TRAD_ZEPHYR_Valeurs
Prix de vente 224 000 €
Les honoraires d'agence seront intégralement à la charge du vendeur  
Taxe foncière annuelle 914 €
DPE GES
  • Commerces et santé
  • Loisirs
  • Ecoles
  • Transports
  • Pratique
Contacter pour ce bien
L'agence
Téléphone 0492129129
Adresse
16 avenue de la république 06300 Nice

* Champ obligatoire

Les informations recueillies sur ce formulaire sont enregistrées dans un fichier informatisé par La Boite Immo agissant comme Sous-traitant du traitement pour la gestion de la clientèle/prospects de l'Agence / du Réseau qui reste Responsable du Traitement de vos Données personnelles. La base légale du traitement repose sur l'intérêt légitime de l'Agence / du Réseau. Elles sont conservées jusqu'à demande de suppression et sont destinées à l'Agence / au Réseau. Conformément à la loi « informatique et libertés », vous disposez des droits d’accès, de rectification, d’effacement, d’opposition, de limitation et de portabilité de vos données. Vous pouvez retirer votre consentement à tout moment en contactant directement l’Agence / Le Réseau. Consultez le site https://cnil.fr/fr pour plus d’informations sur vos droits. Si vous estimez, après avoir contacté l'Agence / le Réseau, que vos droits « Informatique et Libertés » ne sont pas respectés, vous pouvez adresser une réclamation à la CNIL. Nous vous informons de l’existence de la liste d'opposition au démarchage téléphonique « Bloctel », sur laquelle vous pouvez vous inscrire ici : https://www.bloctel.gouv.fr Dans le cadre de la protection des Données personnelles, nous vous invitons à ne pas inscrire de Données sensibles dans le champ de saisie libre.
Ce site est protégé par reCAPTCHA, les Politiques de Confidentialité et les Conditions d'Utilisation de Google s'appliquent.

Découvrir nos outils